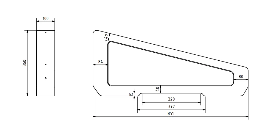
Betonblock 14° - FB14
Der Betonblock FB14 ist für flache Dachflächen sowie für Freiflächeninstallationen von Photovoltaik-Modulen vorgesehen.
Er ermöglicht eine schnelle Montage ohne Bohren und gewährleistet dank seiner Konstruktion eine hohe Stabilität auch unter anspruchsvollen Witterungsbedingungen.
Der Block ist für die horizontale (waagerechte) Montage von PV-Modulen mit einem Neigungswinkel von 14° ausgelegt und ist vollständig mit gängigen Photovoltaik-Montagesystemen kompatibel.
Das Gesamtgewicht eines Blocks beträgt lediglich 25 kg.
